Kaminofen Wodtke Giro water+ 8 kW Wasserführend
Der Kaminofen Wodtke Giro water+ ist, wie der Name unschwer erahnen lässt, ein wassergeführtes Gerät, das Ihr bestehendes Zentralheizungssystem optimal unterstützt. Der Ofen lässt sich auch gut mit einer Solaranlage kombinieren, sodass Sie wetterbedingt die Heizungssysteme wechseln können. Das Design des Ofens erwirbt seine Charakteristika durch die kantige Form und die starken geraden Linien. Ein Swarovski Element, das im Griff verarbeitet ist, verleiht dem Ofen weitere Eleganz.
Die Besonderheiten des Wodtke Giro water+ 8kW Kaminofen
- Raumluftunabhängig
RLU beschreibt Kaminöfen, die im Luftverbund (Zuluft, Rauchrohr, Kaminofen) ohne Ansaugen der Luft im Aufstellraum betrieben werden können. Dies ist möglich durch eine optimale Abdichtung des Ofens und die Luftzuführung von außerhalb. Sie verfügen über eine Zulassung des DIBt (Deutsches Institut für Bautechnik) und erfüllen damit auch die hohen normierten Anforderungen von modernen Niedrigenergie- und Passivhäusern. Weitere erfreuliche Nebeneffekte sind, dass sich der Abbrand durch die gute Steuerbarkeit optimieren lässt, die Effizienz gesteigert und Emissionen und Abfall reduziert werden. Der Ofen kann allerdings auch raumluftabhängig, also ohne externe Zuluft betrieben werden!
- Wasserführung
Wasserführende Kaminöfen von Wodtke verfügen über einen Wärmetauscher, durch den die Warmluft geführt wird und so eine bestehende Heizungsanlage mit erhitztem Wasser betrieben oder gestützt werden kann. Dafür wird ein 500 Liter-Pufferspeicher und entsprechendes Zubehör zum Anschluss benötigt, welches Feuerdepot Ihnen bei Bedarf gerne individuell anbietet.
- Air Control Thermoregelung
Im Wodtke Giro water+ ist die eigens im Hause Wodtke entwickelte Air Control verbaut, die die Verbrennungsluftführung regelt und einen optimierten Abbrand garantiert. So müssen zur Bedienung keinerlei Schieber oder Klappen mehr betätigt werden. Über ein Kapillarsystem ist eine Steuerklappe mit einem Temperaturfühler verbunden, die hydraulisch verstellt wird. Sie passt sich an die verschiedenen Phasen des Abbrands an, indem sie geschickt mit Primär- und Sekundärluft umgeht. So wird vollautomatisch und nur durch Nutzung thermohydraulischer Kräfte nicht nur der Abbrand verbessert, sondern auch die wirkungsvolle Scheibenspülung betrieben.
Weitere Pluspunkte des Wodtke Giro water+
- Front mit Glasdekor in black oder grey
- Türgriff mit eingelegten SWAROVSKI ELEMENTS bleibt auch im Betrieb lange kühl
- im Sockel Lagerfach mit verdeckten Bedienhebeln und Brennstoffwähler für Holz oder Braunkohlenbriketts
- großer, isolierter Wasserwärmetauscher mit ca. 21l Wasserinhalt
- einfache Reinigung der Umlenkungen im Wärmetauscher (über eine Revisionstür zugänglich)
- Sicherheitstechnik gegen Überhitzung (thermische Ablaufsicherung)
- Thermische Ablaufsicherung, Tauchhülse, Entlüfter, Füll- und Entleerhahn sind im Ofen integriert.
- LED-Leuchte (optional) zeigt rechtzeitig an wenn der Pufferspeicher genügend aufgeheizt ist.
- wasserseitiger Anschluss wahlweiße nach unten oder nach hinten verlegbar
- AWS-Scheibenspülung
- Feuerraumauskleidung mit bewährter Vermiculite
- langlebiger Feuerrost aus massivem Gusseisen
- große Aschelade für bequeme Entaschung
- Verbrennungsluftstutzen vertikal nach unten oder horizontal nach hinten anschließbar
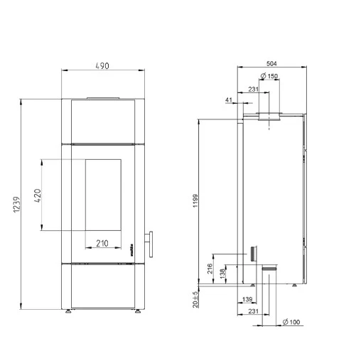
Technische Daten des Kaminofen Wodtke Giro water+ 8kW wasserführend
- 2. Stufe der 1. BImSchV erfüllt
- Nennwärmeleistung 8 kW
- Wärmetauscher mit 21 L Wasserinhalt
- Raumheizvermögen nach DIN 18893 von 30 m² bis 78 m²
- Brennstoff Holz und Braunkohlebrikett
- CO-Gehalt im Abgas 0,12 %-Vol.
- Abgastemperatur 175°C
- Abgasmassenstrom 7,5 g/s
- Notwendiger Förderdruck (Schornsteinzug) 12 PA
- Bauart 1 – Mehrfachbelegung möglich
- Geprüft nach EN 13240 und Art. 15a B-VG
- DIBt Nr. Z-43.11-289 raumluftunabhängig zugelassen
- Rauchrohranschluss nach oben Ø 150 mm
- Anschluss für Verbrennungsluftleitung nach hinten oder unten Ø 100 m
- Gewicht 205 kg
Der Wodtke Kaminofen Giro water+ ist in den folgenden Ausführungen erhältlich:
Grundkörper ›black‹, Türgriff ›matt Chrom‹ mit eingelegten SWAROVSKI ELEMENTS
Front:
- Glas schwarz
Alle technischen Angaben wurden bei Nennwärmeleistung gemessen und sind abhängig von Variante/Ausführung.
Kaminofen Wodtke Giro water+ 8kW, Wodtke Kaminöfen sicher und bequem online kaufen bei Feuerdepot.de, dem Kaminofen Shop.















Rezensionen
Es gibt noch keine Rezensionen.