Kaminofen Wodtke New Look FS12 | 6 kW Raumluftunabhängig
Der Kaminofen Wodtke New Look FS12 ist ein futuristisch anmutender Kaminofen. Auf drei Seiten lässt sich der natürliche Heizvorgang im modernen und mit fortschrittlicher Technologie ausgestatteten Flammenraum beobachten. Gegenüber seinem kleinerem Bruder verfügt der New Look FS12 über einen Wärmespeicheraufsatz, sodass Sie noch lange nach Erlöschen des Feuers die angenehme Strahlungswärme genießen können.
Die Besonderheiten des Wodtke New Look FS12 | 6 kW Kaminofen
- Wärme-Speicher-Modul
Der Wodtke Kaminofen New Look FS12 verfügt über ein integriertes Wärmespeicher-Modul. So wird der Ofen nicht nur schnell warm und sorgt im Aufstellraum für angenehme Wärme, sondern speichert auch noch einen Großteil der Energie des Feuers, um sie später gleichmäßig und über einen längeren Zeitraum als sehr komfortable Strahlungswärme abzugeben. So geht weniger Wärme mit dem Abgas verloren und das Heizen mit knisterndem Holzfeuer wird zu einem noch großartigeren Erlebnis. Damit dies funktioniert, hat die Firma Wodtke eine ausgeklügelte Brennraum-Geometrie entwickelt und die besten Ofenmaterialien verwendet.
- Raumluftunabhängig
RLU beschreibt Kaminöfen, die im Luftverbund (Zuluft, Rauchrohr, Kaminofen) ohne Ansaugen der Luft im Aufstellraum betrieben werden können. Dies ist möglich durch eine optimale Abdichtung des Ofens und die Luftzuführung von außerhalb. Sie verfügen über eine Zulassung des DIBt (Deutsches Institut für Bautechnik) und erfüllen damit auch die hohen normierten Anforderungen von modernen Niedrigenergie- und Passivhäusern. Weitere erfreuliche Nebeneffekte sind, dass sich der Abbrand durch die gute Steuerbarkeit optimieren lässt, die Effizienz gesteigert und Emissionen und Abfall reduziert werden. Der Ofen kann allerdings auch raumluftabhängig, also ohne externe Zuluft betrieben werden!
- Air Control Thermoregelung
Im Wodtke New Look FS12 ist die eigens im Hause Wodtke entwickelte Air Control verbaut, die die Verbrennungsluftführung regelt und einen optimierten Abbrand garantiert. So müssen zur Bedienung keinerlei Schieber oder Klappen mehr betätigt werden. Über ein Kapillarsystem ist eine Steuerklappe mit einem Temperaturfühler verbunden, die hydraulisch verstellt wird. Sie passt sich an die verschiedenen Phasen des Abbrands an, indem sie geschickt mit Primär- und Sekundärluft umgeht. So wird vollautomatisch und nur durch Nutzung thermohydraulischer Kräfte nicht nur der Abbrand verbessert, sondern auch die wirkungsvolle Scheibenspülung betrieben.
- HiClean-Filter
Der Wodtke HiClean-Tiefenfilter wird über dem Feuerraum positioniert. Er besteht aus Schaumkeramik und fängt die vor allem zu Beginn des Abbrands vermehrt anfallenden Schadstoffemissionen auf. Im Verlauf des Abbrands säubert sich der Filter dann selbstständig durch die Hitze. Emissionen und Brennstoffverbrauch werden gesenkt, während Wirkungsgrad und Wärmeabgabe steigen.
Weitere Pluspunkte des Wodtke New Look FS12
- drei Sichtfenster gewähren großzügigen Blick aufs Feuer
- Wärme-Speicher-Modul
- HiClean-Filter über Revisionstür einfach zugänglich
- kühler Türgriff während des Betriebes
- Griff mit SWAROVSKI ELEMENTS
- Lagerfach im Sockel
- Sekundärluftvorwärmung für besonders schadstoffarme Verbrennung
- AWS-Scheibenspülung
- hochwertige, doppelwandige Stahlkonstruktion
- Feuerraumauskleidung mit bewährter Vermiculite
- langlebiger Feuerrost aus massivem Gusseisen
- Aschelade für bequeme Entaschung
- Rauchrohr horizontal und vertikal
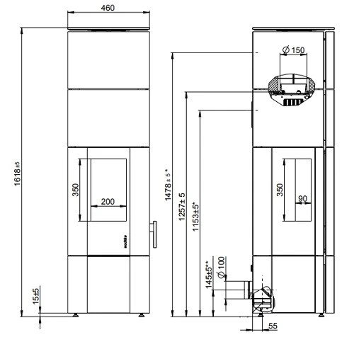
Technische Daten des Kaminofen Wodtke New Look FS12 | 6 kW
- 2. Stufe der 1. BImSchV erfüllt
- Nennwärmeleistung 6 kW
- Raumheizvermögen nach DIN 18893 von 47 m³ bis 116 m³
- Brennstoff Holz
- CO-Gehalt im Abgas 0,12 %-Vol.
- Abgastemperatur 275°C (F) 290°C (U)
- Abgasmassenstrom 6 g/s (F) 5,5 g/s (U)
- Notwendiger Förderdruck (Schornsteinzug) 12 PA
- Bauart 1 / Mehrfachbelegung möglich
- Geprüft nach EN 13240 und Art. 15a B-VG
- DIBt Nr. Z–43.12–335 raumluftunabhängig
- Rauchrohranschluss nach oben oder hinten Ø 150 mm
- Anschluss für Verbrennungsluftleitung Ø 100 mm
- Gewicht 235 kg
Der Wodtke Kaminofen New Look FS12 ist in den folgenden Ausführungen erhältlich:
Grundkörper ›black‹, Front- und Seitenglas ›black‹, Glas-Dekorplatte oben ›black‹, Türgriff ›matt Chrom‹ mit eingelegten SWAROVSKI ELEMENTS
Alle technischen Angaben wurden bei Nennwärmeleistung gemessen und sind abhängig von Variante/Ausführung.
Kaminofen Wodtke New Look FS12 | 6kW, Wodtke Kaminöfen sicher und bequem online kaufen bei Feuerdepot.de, dem Kaminofen Shop.















Rezensionen
Es gibt noch keine Rezensionen.